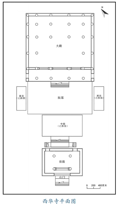
位于师宗县城西500米处天台山东麓。建筑坐东北向西南,自山门起依地势逐层上升,沿中轴线分别由山门、前殿、中殿、大殿、观音殿、碑刻等组成建筑群,占地面积1580平方米。寺院建筑全部为悬山顶抬梁式土木结构。 前殿至中殿之间为1石砌台基,经台基越18级台阶可入中殿。 中殿,3开间,通面阔17米、进深7米、通高约9米。殿中为明间,前檐出厦,置回廊。檐下为莲台吊柱,昂呈龙首状,穿插枋额头呈象鼻上卷势,枋下垫有卷草纹饰的衬枋。屋架结构与前殿相同,均为七檩抬梁式木结构。 花台,出中殿,沿寺大院回廊可上至花台。 花台长8米、宽1.36米、高0.9米;台座束腰处正面及两侧镌刻有“八仙”故事、花卉浮雕图案;花台中植有紫玉兰2株,栽植年代不详。 大殿,置于花台后高约2米的台基上。5开间,通面阔23米、进深10.5米、高9米。前檐卷棚出厦。挑尖梁头及昂分别雕刻成象鼻和龙首状,檐枋及柱头枋上分别雕刻“八仙”、“二十四孝”故事、云龙花草图饰,彩画精细,颇具民间传统画风。殿门由6扇木雕直棂格子门组成,门上障日板牙头护缝装置,腰串及裙板上彩绘有吉禽瑞兽和精美的翎毛花卉图案。 观音殿,位于大殿东侧,现为寺僧舍房。3开间,通面阔11米、进深6米、高7米。观音殿与寺内各厢房配殿一样,几经修葺,除梁架构件未变外,墙体、门窗、装饰皆与现代民居无异。 西华寺始建于明万历三十八年(1610),由开山檀越二华居士赵尚文为主募金筹建。清道光初,寺庙建筑大部分毁于兵燹。清道光十八年(1838),做过一次较大规模的修葺改建。1970~1988年间,师宗县制药厂、师宗县委党校、师宗县教师进修学校分别在此使用房舍。1990年,集资维修并新塑佛像。今西华寺虽多经修葺,但整体布局与主要建筑仍保持原建筑的风貌。西华寺因花木繁茂、风景优美而著称,历史上许多文人墨客于此题联、赋诗。“师阳名胜推西华,古木参天曲径斜。野寺红尘飞不到,客来莫不喜相夸”就是证明。西华寺是曲靖市南部地区现存古建筑中较大的佛寺建筑之一,具有较高的历史、科学与艺术价值。 2002年12月,曲靖市人民政府公布为第一批文物保护单位。前殿,3开间,通面阔12米、进深8.5米、通高约9.5米。殿中为明间,前檐卷棚出厦,屋架为七檩抬梁式穿枋梁架结构。悬挂匾额“西华禅寺”,为清康熙三十六年(1697)师宗州知州金星瑞题书,是寺中保存较好的古建筑之一。
西华寺碑,为建寺时所立。通高1.72米、宽0.82米、厚0.12米。碑额呈半圆首形,浮雕双凤朝阳图案,卷草纹饰框边。碑座为须弥座。碑身为长条形,碑文凡18行,行43字,正书直书左行。内容为新建西华寺筹备经过及各殿宇的规模情况,碑文文字由师宗知州袁国藩撰书,现大部分剥蚀漫漶。在大殿东山墙外侧券门处墙内,嵌有明崇祯七年(1634)三月所立的西华寺常住碑1通,形制与建寺碑略同,主要记述西华寺建寺始末、捐款功德、所置田亩施主及住持僧姓名等。
极目新闻客户端
曲靖文物志:西华寺
曲靖发布
2024-06-14 10:33:45
阅读量:
责任编辑:简俊晖
